Par projektu
Ēkā paredzēti 13 investīciju dzīvokļi platībās no 25 līdz 55 kv.m., istabu skaits 1-2, trīs dzīvokļi ar balkoniem, piektajā stāvā atsevišķs dzīvoklis ar lielisku skatu pāri Vecrīgas namu jumtiem. Pagrabstāvā izvietotas noliktavas telpas katram dzīvoklim.
Tiks renovēta kāpņu telpa, mainītas komunikācijas, jauni plānojumi. Dzīvokļi tiks piedāvāti ar balto apdari, bet iespējams nodrošināt pilnu apdari, kā arī varam pieslēgt īres operatoru, kas izīrēs Jūsu dzīvokli gan īstermiņā, gan ilgtermiņā.
Ēka celta 18. gs., pārbūvēta 1912. gadā - arhitekts Edmunds von Trompovskis. Ilgi bijusi un ekspluatēta kā administratīvā ēka, bet šobrīd tiek pārveidota par dzīvojamo ēku.
Stāvs: 1
Istabu skaits: 1
- Zeme īpašumā.
Vannas istaba 4.2 kv.m.
Dzīvojamā zona 43.00 kv.m.
Platība kopā: 47.2 kv.m.
Stāvs: 1
Istabu skaits: 1
- Zeme īpašumā.
Priekštelpa 3.12 kv.m.
Vannas istaba 2.41 kv.m.
Virtuves zona 3.14 kv.m.
Dzīvojamā zona 16.27 kv.m.
Platība kopā: 24.94 kv.m.
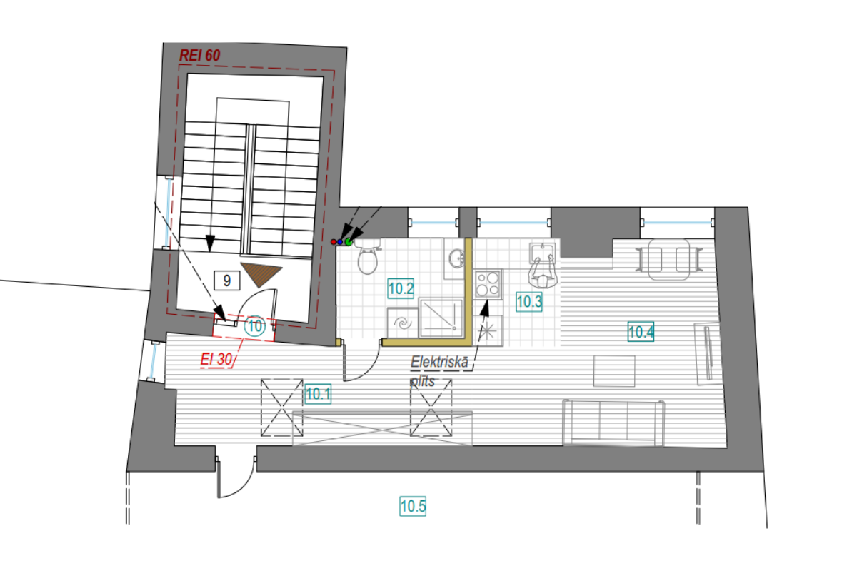
Stāvs: 1
Istabu skaits: 1
- Zeme īpašumā.
Priekštelpa 4.38 kv.m.
Vannas istaba 7.72 kv.m.
Virtuves zona 3.27 kv.m.
Dzīvojamā zona 17.99 kv.m.
Platība kopā: 33.36 kv.m.
Stāvs: 2
Istabu skaits: 2
- Zeme īpašumā.
Vannas istaba 3.8 kv.m.
Dzīvojamā istaba 44.6 kv.m.
Platība kopā: 48.4 kv.m.
Stāvs: 2
Istabu skaits: 2
- Zeme īpašumā.
Priekštelpa 8.65 kv.m.
Vannas istaba 2.9 kv.m.
Virtuves zona 7.39 kv.m.
Dzīvojamā istaba 18.82 kv.m.
Guļamistaba 11.95 kv.m.
Platība kopā: 49.71 kv.m.
Stāvs: 2
Istabu skaits: 1
- Zeme īpašumā.
Priekštelpa 1.76 kv.m.
Vannas istaba 5.79 kv.m.
Virtuves zona 6.4 kv.m.
Dzīvojamā istaba 20.2 kv.m.
Platība kopā: 29.67 kv.m.
Stāvs: 3
Istabu skaits: 2
- Zeme īpašumā.
Vannas istaba 4.0 kv.m.
Dzīvojamā istaba 44.7 kv.m.
Platība kopā: 48.70 kv.m.
Stāvs: 3
Istabu skaits: 2
- Zeme īpašumā.
Priekštelpa 7.18 kv.m.
Vannas istaba 3.85 kv.m.
Virtuves zona 7.05 kv.m.
Dzīvojamā istaba 17.56 kv.m.
Guļamistaba 14.07 kv.m.
Platība kopā: 49.71 kv.m.
Stāvs: 3
Istabu skaits: 1
- Zeme īpašumā.
Priekštelpa 1.66 kv.m.
Vannas istaba 6.31 kv.m.
Virtuves zona 7.11 kv.m.
Dzīvojamā istaba 14.59 kv.m.
Platība kopā: 29.67 kv.m.
Stāvs: 4
Istabu skaits: 2
- Zeme īpašumā.
Vannas istaba 3.6 kv.m.
Dzīvojamā istaba 36.8 kv.m.
Guļamistaba 10.9 kv.m.
Platība kopā: 51.3 kv.m.
Stāvs: 4
Istabu skaits: 2
- Zeme īpašumā.
Priekštelpa 7.95 kv.m.
Vannas istaba 3.77 kv.m.
Virtuves zona 7.09 kv.m.
Dzīvojamā istaba 17.84 kv.m.
Guļamistaba 12.62 kv.m.
Platība kopā: 49.71 kv.m.
Stāvs: 4
Istabu skaits: 1
- Zeme īpašumā.
Priekštelpa 1.37 kv.m.
Vannas istaba 5.22 kv.m.
Virtuves zona 6.4 kv.m.
Dzīvojamā istaba 16.68 kv.m.
Platība kopā: 29.67 kv.m.
Stāvs: 5
Istabu skaits: 1
- Zeme īpašumā.
Priekštelpa 11.81 kv.m.
Vannas istaba 4.87 kv.m.
Virtuves zona 3.61 kv.m.
Dzīvojamā istaba 15.61 kv.m.
Platība kopā: 35.9 kv.m.