About project
There are 13 investment apartments in the building in the areas from 25 to 55 sq.m., number of rooms 1-2, three apartments with balconies, on the fifth floor a separate apartment with a great view over the roofs of Old Riga houses. In the basement there are storage rooms for each apartment.
The staircase will be renovated, communications will be changed, new layouts will be provided. The apartments will be offered with white finish, but it is possible to provide full finish, as well as we can connect a rental operator who will rent your apartment both in the short and long term.
The building was built in the 18th century, rebuilt in 1912 by architect Edmund von Trompowski. It has been and operated as an administrative building for a long time, but is now being converted into a residential building.
Floor: 1
Rooms: 1
Bathroom 4.20 sqm
Living area 43.00 sqm
Total area: 47.20 sqm
Floor: 1
Rooms: 1
Entry area 3.12 sqm
Bathroom 2.41 sqm
Kitchen area 3.14 sqm
Living area 16.27 sqm
Total area: 24.94 sqm
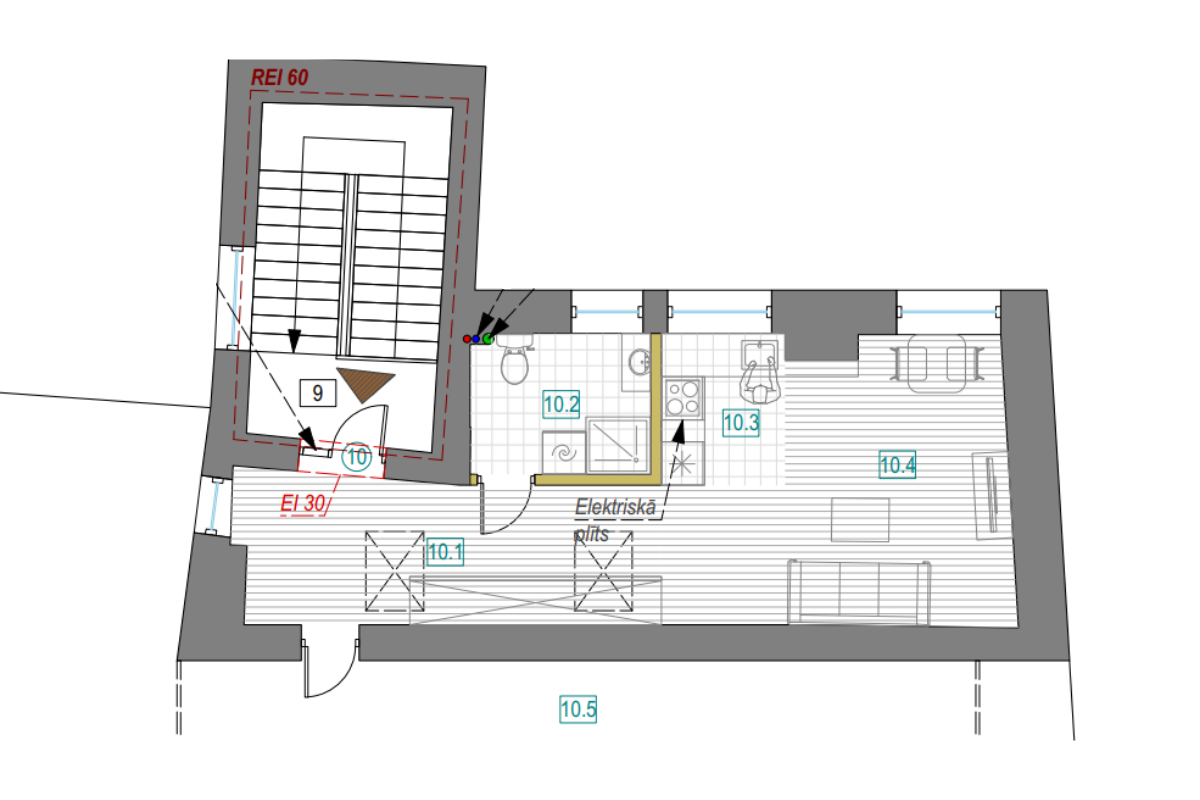
Floor: 1
Rooms: 1
Entry area 4.38 sqm
Bathroom 7.72 sqm
Kitchen area 3.27 sqm
Living area 17.99 sqm
Total area: 33.36 sqm
Floor: 2
Rooms: 2
Bathroom 3.80 sqm
Living area 44.60 sqm
Total area: 48.40 sqm
Floor: 2
Rooms: 2
Entry area 8.65 sqm
Bathroom 2.9 sqm
Kitchen area 7.39 sqm
Living area 18.82 sqm
Bedroom 11.95 sqm
Total area: 49.71 sqm
Floor: 2
Rooms: 1
Entry area 1.76 sqm
Bathroom 5.79 sqm
Kitchen area 6.4 sqm
Living area 20.2 sqm
Total area: 29.67 sqm
Floor: 3
Rooms: 2
Bathroom 4.00 sqm
Living area 44.70 sqm
Total area: 48.70 sqm
Floor: 3
Rooms: 2
Entry area 7.18 sqm
Bathroom 3.85 sqm
Kitchen area 7.05 sqm
Living area 17.56 sqm
Bedroom 14.07 sqm
Total area: 49.71 sqm
Floor: 2
Rooms: 1
Entry area 1.66 sqm
Bathroom 6.31 sqm
Kitchen area 7.11 sqm
Living area 14.59 sqm
Total area: 29.67 sqm
Floor: 4
Rooms: 2
Bathroom 3.60 sqm
Living area 36.80 sqm
Bedroom 10.9 sqm
Total area: 51.3 sqm
Floor: 2
Rooms: 2
Entry area 7.95 sqm
Bathroom 3.77 sqm
Kitchen area 7.09 sqm
Living area 17.84 sqm
Bedroom 12.62 sqm
Total area: 49.71 sqm
Floor: 2
Rooms: 1
Entry area 1.37 sqm
Bathroom 5.22 sqm
Kitchen area 6.4 sqm
Living area 16.68 sqm
Total area: 29.67 sqm
Floor: 5
Rooms: 1
Entry area 11.81 sqm
Bathroom 4.87 sqm
Kitchen area 3.61 sqm
Living area 15.61 sqm
Total area: 35.9 sqm